

Die Aufgabe:
Für ein Design-Flach-Waschbecken der Firma Alape haben wir den passenden Unterbau gesucht, der einerseits die flache Form noch mehr unterstreicht, andererseits sich soweit zurücknimmt, dass das eigentliche Objekt - das Waschbecken - nicht in den Hintergrund tritt.
Zusätzlich sollte der Waschtisch auf keinen Fall auf dem Boden stehen und in seiner Materialwahl perfekt zum Waschbecken passen.

Die Idee:
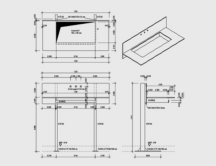
Um der schlichten Form des Waschbeckens gerecht zu werden, suchten wir ein sehr dünnes Material. Damit das weiße Waschbecken optisch nicht “verschwindt”, sollte das Material dunkel sein, um einen deutlichen Kontrast zu bilden. Wegen der gewünschten Stabilität haben wir uns für rohe Stahlplatten entschieden, die später mit einem Klarlack beschichtet wurden.
Da der Waschtisch ein Alltagsgegenstand ist und auch als solcher verwendet wird, war ausführliche Planung bis ins letzte Detail erforderlich.

Die Umsetzung:
Neben den Bohrungen für Armatur und Seifenspender, eine Aufhängemöglichkeit für Handtücher und außreichend Ablagefläche neben dem Waschbecken war die statische Konstruktion sehr wichtig, da der Waschtisch wegen des gewählten Materials sehr schwer ist. Die Gestaltung der Wand, an der der Waschtisch scheinbar hängt, unterstreicht noch einmal den flachen Charakter des Waschbeckens. Die Spiegelstreifen werden von Leuchtstoffröhren erhellt und als Effektbeleuchtung durch blaue LEDs.
